Работаем на всей территории России!
8-996-569-98-88, 8-996-568-89-99

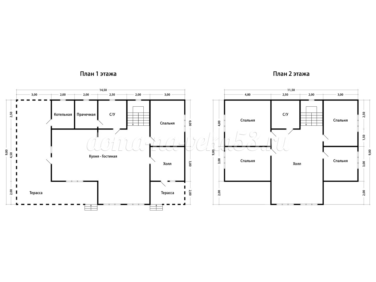
Проект ДБ-28

Дом из бруса
9х14,5 м.
Под Усадку Стандарт Премиум
1 900 000 руб.
2 800 000 руб.
3 220 000 руб.
Стандартная комплектация

Что входит в комплектацию?

«Под Усадку»

Стандарт

Премиум

Стеновой комплект

Гидроизоляция дома

Рубероид в два слоя

Основание дома (обрезной брус)

150×150 мм. В два ряда

150×150 мм. В два ряда

200×150 мм. В два ряда

Половые и потолочные лаги( обрезная доска)

150×50 мм шаг 590 мм

200×50 мм шаг 590 мм

Черновой пол (обрезная доска

_

20×100 мм.

20×100 мм.

Капитальные стены и перегородки

Стены — профилированный брус сечением 140×140 мм. Между венцами прокладывается льноджутовое полотно. Перегородки профилированный брус сечением 90×140 мм.

Стены — профилированный брус сечением 190×140 мм. Перегородки профилированный брус сечением 90×140 мм. и 140×140 мм

Капитальные стены и перегородки 2-й этаж ( мансарда)

Профилированный брус или каркасный этаж в зависимости от проекта.

Сборка сруба

На деревянные нагеля и в «теплый угол»

Высота стен

2.40 м (18 рядов бруса) . на мансардном этаже −2.4 м.

Стропильная система ( обрезная доска)

150×50 мм. С шагом 590мм

Фронтоны ( каркасные)

Имитация бруса 17×140 мм камерной сушки

Кровля

Обрешетка (обрезная доска)

20×100 мм шаг 350 мм

Контр-рейка

40×50 мм

Гидро-ветрозащитная мембрана

Изоспан «АМ» ( или аналоги)

Кровельное покрытие ( зелёный, красный, коричневый)

Металлочерепица 0.45 мм

Снегозадержание

-

Металлические

Свесы

600 мм. Обшиваются строганной доской 15×100 мм

Отделка

Потолок 1 го этажа и Мансарда

-

Вагонка 17×90 мм камерной сушки

Настил полов

-

Шпунт 36 мм камерной сушки

Теплоизоляция

-

Пол, потолок и мансарда: рулонная вата Knauf и Rockwool ( или аналоги)

Межэтажная лестница

-

Ступени, балясины, стартовые столбы, перила заводские.

Настил террас и балконов

-

Террасная доска вельвет 36мм хвоя

Устройство ограждений

-

Перила и точеные балясины.

Наличники окон и дверей

-

Сухая строганная доска.

Отделка углов

-

Плинтус фигурный

Окна и двери

Оконные блоки

-

ПВХ двухкамерные

Входная дверь

-

Металлическая утепленная дверь

Межкомнатные двери

-

Филенчатые из массива и сосны

Ройки и обсада

-

Устанавливаются закладные в оконные и дверные проемы

Оставить заявку / Уточнить детали проекта

Наши преимущества

Гарантия на объект - 2 года!

Работаем по всей России!

Короткие сроки возведения

Строители с опытом работы

Минимальная наценка

Индивидуальное проектирование домов и бань

Осуществляем полный и частичный демонтаж

Новости

© 2016 СК “Дома-На-Века53”
Сайт носит исключительно информационный характер и не является публичной офертой.
Для получения подробной информации о стоимости указанных товаров и (или) услуг, пожалуйста,
обращайтесь к менеджерам по телефонам указанным на сайте.

Заказать обратный звонок