
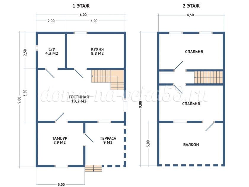
| Под Усадку | Стандарт | Премиум |
1 280 000 руб. |
1 880 000 руб. |
2 090 000 руб. |
|
Что входит в комплектацию? |
«Под Усадку» |
Стандарт |
Премиум |
|||
|
Стеновой комплект |
||||||
|
Гидроизоляция дома |
Рубероид в два слоя |
|||||
|
Основание дома (обрезной брус) |
150×150 мм. В два ряда |
150×150 мм. В два ряда |
200×150 мм. В два ряда |
|||
|
Половые и потолочные лаги( обрезная доска) |
150×50 мм шаг 590 мм |
200×50 мм шаг 590 мм |
||||
|
Черновой пол (обрезная доска |
_ |
20×100 мм. |
20×100 мм. |
|||
|
Капитальные стены и перегородки |
Стены — профилированный брус сечением 140×140 мм. Между венцами прокладывается льноджутовое полотно. Перегородки профилированный брус сечением 90×140 мм. |
Стены — профилированный брус сечением 190×140 мм. Перегородки профилированный брус сечением 90×140 мм. и 140×140 мм |
||||
|
Капитальные стены и перегородки |
Профилированный брус или каркасный этаж в зависимости от проекта. |
|||||
|
Сборка сруба |
На деревянные нагеля и в «теплый угол» |
|||||
|
Высота стен |
2.40 м (18 рядов бруса) . на мансардном этаже −2.4 м. |
|||||
|
Стропильная система ( обрезная доска) |
150×50 мм. С шагом 590мм |
|||||
|
Фронтоны ( каркасные) |
Имитация бруса 17×140 мм камерной сушки |
|||||
|
Кровля |
||||||
|
Обрешетка (обрезная доска) |
20×100 мм шаг 350 мм |
|||||
|
Контр-рейка |
40×50 мм |
|||||
|
Гидро-ветрозащитная мембрана |
Изоспан «АМ» ( или аналоги) |
|||||
|
Кровельное покрытие ( зелёный, красный, коричневый) |
Металлочерепица 0.45 мм |
|||||
|
Снегозадержание |
- |
Металлические |
||||
|
Свесы |
600 мм. Обшиваются строганной доской 15×100 мм |
|||||
|
Отделка |
||||||
|
Потолок 1 го этажа и Мансарда |
- |
Вагонка 17×90 мм камерной сушки |
||||
|
Настил полов |
- |
Шпунт 36 мм камерной сушки |
||||
|
Теплоизоляция |
- |
Пол, потолок и мансарда: рулонная вата Knauf и Rockwool ( или аналоги) |
||||
|
Межэтажная лестница |
- |
Ступени, балясины, стартовые столбы, перила заводские. |
||||
|
Настил террас и балконов |
- |
Террасная доска вельвет 36мм хвоя |
||||
|
Устройство ограждений |
- |
Перила и точеные балясины. |
||||
|
Наличники окон и дверей |
- |
Сухая строганная доска. |
||||
|
Отделка углов |
- |
Плинтус фигурный |
||||
|
Окна и двери |
||||||
|
Оконные блоки |
- |
ПВХ двухкамерные |
||||
|
Входная дверь |
- |
Металлическая утепленная дверь |
||||
|
Межкомнатные двери |
- |
Филенчатые из массива и сосны |
||||
|
Ройки и обсада |
- |
Устанавливаются закладные в оконные и дверные проемы |
||||
Гарантия на объект - 2 года!
Работаем по всей России!
Короткие сроки возведения
Строители с опытом работы
Минимальная наценка
Индивидуальное проектирование домов и бань
Осуществляем полный и частичный демонтаж