
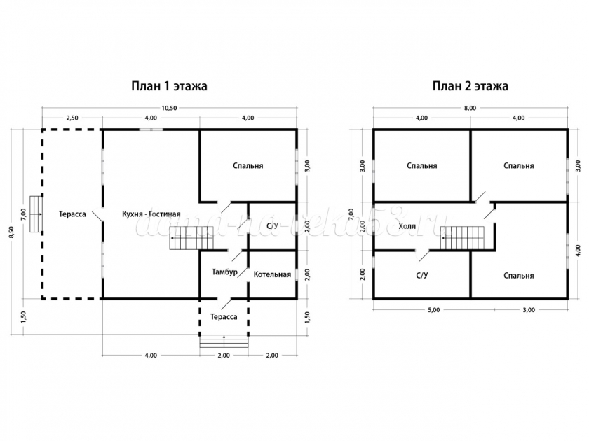
| Коробка | Стандарт | Премиум |
1 770 000 руб. |
2 300 000 руб. |
2 800 000 руб. |
|
Что входит в комплектацию? |
Коробка |
Стандарт |
Премиум |
|||||||
|
Силовой каркас дома |
||||||||||
|
Гидроизоляция дома |
Рубероид в два слоя |
|||||||||
|
Основание дома (обрезной брус в два ряда) |
150×150 мм |
150×150 мм |
195×150 мм |
|||||||
|
Половые лаги (обрезная доска камерной сушки) |
150×50 мм |
150×50 мм |
195×45 мм (строганая) |
|||||||
|
Черновой пол ( обрезная доска) |
20×100 мм |
20×100 мм |
20×100 мм |
|||||||
|
Каркас несущих стен ( обрезная доска камерной сушки) |
150×50 мм |
150×50мм |
195×45 мм (строганая) |
|||||||
|
Каркас перегородок ( обрезная доска камерной сушки) |
100×40 мм |
100×40 мм |
95×45 мм (строганая) |
|||||||
|
Межэтажное перекрытие ( обрезная доска камерной сушки) |
150×50 мм |
150×50 мм |
195×45 мм ( строганая) |
|||||||
|
Стропильная система (обрезная доска камерной сушки) |
150×50 мм |
150×50 мм |
195×45 мм ( строганая) |
|||||||
|
Высота потолка |
|
|
||||||||
|
Кровля |
||||||||||
|
Обрешетка ( обрезная доска) |
20×100мм |
|||||||||
|
Контр-рейка |
40×50 мм |
|||||||||
|
Гидро-ветрозащитная мембрана |
Изоспан «АМ» ( или их аналоги) |
|||||||||
|
Кровельное покрытие ( Металлочерепица) зелёный, красный, коричневый |
0,45 мм |
0,5 мм |
||||||||
|
Снегозадержание |
- |
Металлическая |
||||||||
|
Свесы: Обшиваются строганной доской 15×100 мм |
|
|
||||||||
|
Отделка фасада |
||||||||||
|
Ветрозащита |
Изоспан «А» |
Isoplat 12 мм/ Белтермо 20 мм |
||||||||
|
Вентиляционный зазор ( рейка) |
20×50 мм |
|||||||||
|
Имитация бруса ( камерной сушки) |
17×140 мм |
17×140 мм |
22×180 мм |
|||||||
|
Наличники окон и дверей |
Сухая строганная доска |
|||||||||
|
Устройства ограждений |
Перила и точеные балясины |
|||||||||
|
Настил террас и балкон |
Террасная доска вельвет 36 мм хвоя |
|||||||||
|
Внутренняя отделка |
||||||||||
|
Теплоизоляция Rockwool скандик |
- |
150 мм. |
200 мм. |
|||||||
|
Шумоизоляция перегородок |
— |
100 мм. |
100 мм. |
|||||||
|
Пароизоляция |
- |
Изоспан «В» (или их аналоги) |
||||||||
|
Настил полов |
— |
Шпунт 140×36мм |
Kwick deck 22 мм. |
|||||||
|
Межэтажная лестница |
- |
Ступени, балясины, стартовые столбы, перила зводские. |
||||||||
|
Отделка стен |
- |
Вагонка 17×90 мм |
Имитация бруса 17×140 мм. |
|||||||
|
Отделка потолка |
- |
Вагонка 17×90 мм |
Вагонка 17×90 мм |
|||||||
|
Отделка углов |
Плинтус фигурный |
|||||||||
|
Окна/Двери |
||||||||||
|
Оконные блоки |
ПВХ двухкамерные |
ПВХ двухкамерные |
ПВХ двухкамерные |
|||||||
|
Входная дверь |
Металлическая утепленная дверь |
|||||||||
|
Межкомнатные двери |
- |
Филенчатые из массива сосны |
Филенчатые из массива сосны |
|||||||
Гарантия на объект - 2 года!
Работаем по всей России!
Короткие сроки возведения
Строители с опытом работы
Минимальная наценка
Индивидуальное проектирование домов и бань
Осуществляем полный и частичный демонтаж